Construction de studio
- 9 réponses
- 4 participants
- 4 069 vues
- 8 followers

ciri55
5

Nouvel·le AFfilié·e
Membre depuis 18 ans
Sujet de la discussion Posté le 26/07/2012 à 19:06:56Construction de studio
Bonjour tous le monde, tout d'abord je tiens a m'excuser pour l'absence des accents mais je suis a chicago avec un clavier qwerty et sans accent top quoi 
Donc je me lance dans la construction de mon studio d'enregistrement, et, apres avoir lu quelques messages sur les forums mon idee a pu murir mais n'etant pas un pro de l'audio, je ne veux pas faire nimporte quoi pour le regreter par la suite.
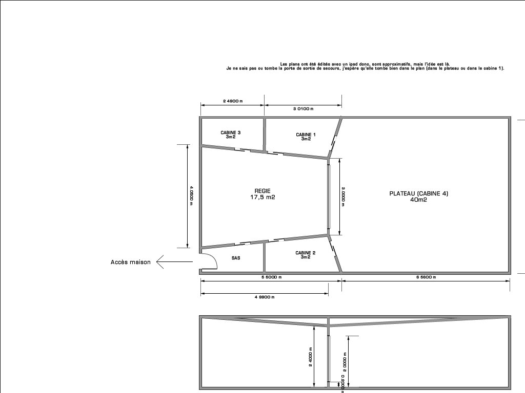
Donc je suis etudiant en architecture, j'ai 20 ans et j'ai lance la construction d'une "boite" completement enterree qui mesure (cotes interieures) 10.7x5.3x2.8
le projet comporte au moins une regie, une cabine live pour repeter avec mon groupe et une cabine chant.
J'ai pu realiser ce plan qui comporte 4 cabines isolees faisant office de SAS acoustique d'environ 3m2 chacunes

Voila l'idee retenue apres mes recherches sur le net.


Voila quelques photos de l'avancement des travaux.
(desole pour la photo renversee mais je n'ai pas reussi a la modifiee une fois sur AF)
Donc je me pose la question de savoir:
1- si mon plan tiens la route?
2- comment realiser une bonne isolation acoustique?
3- comment regler l'acoustique des locaux?
ps: le studio sera recouvert par 1m de terre.
Bien je crois que n'ai rien oublie.
je posterai des news quand j'en aurai pour suivre le projet.
Merci.

Donc je me lance dans la construction de mon studio d'enregistrement, et, apres avoir lu quelques messages sur les forums mon idee a pu murir mais n'etant pas un pro de l'audio, je ne veux pas faire nimporte quoi pour le regreter par la suite.
Donc je suis etudiant en architecture, j'ai 20 ans et j'ai lance la construction d'une "boite" completement enterree qui mesure (cotes interieures) 10.7x5.3x2.8
le projet comporte au moins une regie, une cabine live pour repeter avec mon groupe et une cabine chant.
J'ai pu realiser ce plan qui comporte 4 cabines isolees faisant office de SAS acoustique d'environ 3m2 chacunes
Voila l'idee retenue apres mes recherches sur le net.
Voila quelques photos de l'avancement des travaux.
(desole pour la photo renversee mais je n'ai pas reussi a la modifiee une fois sur AF)
Donc je me pose la question de savoir:
1- si mon plan tiens la route?
2- comment realiser une bonne isolation acoustique?
3- comment regler l'acoustique des locaux?
ps: le studio sera recouvert par 1m de terre.
Bien je crois que n'ai rien oublie.
je posterai des news quand j'en aurai pour suivre le projet.
Merci.


Etienne1992
387

Posteur·euse AFfamé·e
Membre depuis 16 ans
2 Posté le 26/07/2012 à 19:26:54
C'est très intéressant ça !
Les travaux ont donc déjà débuté ?
As-tu fait des calculs spécifiques pour l'acoustique ?
Je vais suivre tout ça avec intérêt !
Les travaux ont donc déjà débuté ?
As-tu fait des calculs spécifiques pour l'acoustique ?
Je vais suivre tout ça avec intérêt !
0
Mes réalisations : http://www.rallu-sound.ch

ciri55
5

Nouvel·le AFfilié·e
Membre depuis 18 ans
3 Posté le 26/07/2012 à 19:34:45
Oui la construction a deja debutee mais est en attente pour le moment, ce n'est qu'une partie du projet le gros oeuvre est termine.
mais je n'ai aucune idee de comment realiser reelement les cloisons acoustiques int/int et int/ext, et comment le son se propage avec l'exterieur puis que le local est enterre

mais je n'ai aucune idee de comment realiser reelement les cloisons acoustiques int/int et int/ext, et comment le son se propage avec l'exterieur puis que le local est enterre

0

ThomassssR
105

Posteur·euse AFfiné·e
Membre depuis 13 ans
4 Posté le 26/07/2012 à 20:53:56
Wow tu vas être bien là! Je suis aussi l'avancement des travaux 
J'avais entendu parlé d'une double cloison
Sur google tu dois pouvoir trouver pleins de sites spécialisé là dedans, j'avais fait ça pour mon petit home studio, mais toi c'est un gros projet donc different
Essaye quelques sites google comme celui ci: http://www.guide-de-l-isolation.com/isolation_acoustique/isolation_acoustique

J'avais entendu parlé d'une double cloison
Sur google tu dois pouvoir trouver pleins de sites spécialisé là dedans, j'avais fait ça pour mon petit home studio, mais toi c'est un gros projet donc different
Essaye quelques sites google comme celui ci: http://www.guide-de-l-isolation.com/isolation_acoustique/isolation_acoustique
0
www.facebook.com/TheMarveyMusic <= Ma page qui contient mes clips vidéos (Reprises/compos) ! :D

ciri55
5

Nouvel·le AFfilié·e
Membre depuis 18 ans
5 Posté le 27/07/2012 à 20:36:18
Hello!
me voila revenu avec de nouvelles photos
et j'ai aussi trouvé comment mettre des accents elle est pas belle la vie :p
merci pour le lien, jee vais y jetter un coup d'oeil

Voila la partie reliée avec la maison

et la le reste.
Je n'ai pas encore de photos de l'interieur mais ça ne devrait pas trop tarder.
en attendant je me demandais, pour le plancher en général du studio, il vaut mieux mettre du parquet ou de la moquette ou les deux ou encore j'avais pensé a mettre du parquet avec des tapis pour faire varier l'acoustique de la pièce.
sur ce bonne fin de journée
me voila revenu avec de nouvelles photos
et j'ai aussi trouvé comment mettre des accents elle est pas belle la vie :p
merci pour le lien, jee vais y jetter un coup d'oeil
Voila la partie reliée avec la maison
et la le reste.
Je n'ai pas encore de photos de l'interieur mais ça ne devrait pas trop tarder.
en attendant je me demandais, pour le plancher en général du studio, il vaut mieux mettre du parquet ou de la moquette ou les deux ou encore j'avais pensé a mettre du parquet avec des tapis pour faire varier l'acoustique de la pièce.
sur ce bonne fin de journée

0

nicko97
2996

Squatteur·euse d’AF
Membre depuis 13 ans
6 Posté le 27/07/2012 à 20:50:45
slt, la moquette partout NoN sa va absorber( plus absorbeur sur les murs sa fera trop), éventuellement un tapis sous ta chaise au niveau du point d'écoute si besoin 

0

ciri55
5

Nouvel·le AFfilié·e
Membre depuis 18 ans
7 Posté le 27/07/2012 à 21:52:22
Ok merci donc on va prendre l'option parquet tapis 

0

Etienne1992
387

Posteur·euse AFfamé·e
Membre depuis 16 ans
8 Posté le 29/07/2012 à 17:59:02
Je me demande si une étude par un bureau d'acousticien ne serait pas quand même une très bonne idée dans ton cas.
ça permettrait quand même d'éviter des mauvaise surprises et ce serait fait par des gens réellement compétent dans ce domaine que je trouve d'une complexité redoutable....
ça permettrait quand même d'éviter des mauvaise surprises et ce serait fait par des gens réellement compétent dans ce domaine que je trouve d'une complexité redoutable....
0
Mes réalisations : http://www.rallu-sound.ch

ciri55
5

Nouvel·le AFfilié·e
Membre depuis 18 ans
9 Posté le 29/07/2012 à 20:37:50
oui en effet c'est peut etre ce que je vais faire, mais ca remet beaucoup d'argent sur le tapis, alors je me dis que le plus important est de réaliser l'isolation et de créer une acoustique "variable" et plus tard faire intervenir un acousticien.
ce n'est qu'une idée pour le moment car le projet est en suspend pour la réalisation d'autres travaux sur le terrain.

ce n'est qu'une idée pour le moment car le projet est en suspend pour la réalisation d'autres travaux sur le terrain.

0

Etienne1992
387

Posteur·euse AFfamé·e
Membre depuis 16 ans
10 Posté le 29/07/2012 à 22:02:56
Dans les grandes lignes que la plupart des ingénieurs du sons connaissent, il y a les choses suivantes :
- éviter les murs paralèlles (Ce que tu as visiblement fait sur le plan)
- Une configuration régie dite LEDE (Live End, Dead End) où la régie est séparée en deux. Le côté ou on trouve les haut-parleurs sera extrêmement absorbant et le côté opposé sera réfléchissant en utilisant des diffuseurs pour éviter les phénomènes de focalisation.
Ensuite, si tu veux une acoustique variable dans les différents studios et cabines, je pense que la pose de rideaux épais sur les murs peut aider. Ainsi, quand tu veux une pièces plus réfléchissante et clair, tu replies les rideaux alors que quand tu veux une pièce plus sourde, tu les refermes. L'utilisation de tapis sur le parquet irait également dans ce sens.
Il existe des studios dans lesquels le sol est posé en suspension sur une dalle de béton. Je ne sais pas comment le système fonctionne mais il permet d'absorber les vibrations du sol et de permettre une meilleur isolation entre les différentes pièces et aussi des effets de résonance. (A prendre avec des pincettes. Je sais que ça existe, mais je ne sais pas exactement comment ça fonctionne....)
Pour l'isolation entre les parois de la régie et du studio, je pense que la référence est la laine de roche. Pour les parois vitrées, on utilise généralement deux vitres non parallèles.
Bon voilà, tout ça c'est de l'acoustique de comptoir et je ne peux pas t'aider beaucoup plus malheureusement....
- éviter les murs paralèlles (Ce que tu as visiblement fait sur le plan)
- Une configuration régie dite LEDE (Live End, Dead End) où la régie est séparée en deux. Le côté ou on trouve les haut-parleurs sera extrêmement absorbant et le côté opposé sera réfléchissant en utilisant des diffuseurs pour éviter les phénomènes de focalisation.
Ensuite, si tu veux une acoustique variable dans les différents studios et cabines, je pense que la pose de rideaux épais sur les murs peut aider. Ainsi, quand tu veux une pièces plus réfléchissante et clair, tu replies les rideaux alors que quand tu veux une pièce plus sourde, tu les refermes. L'utilisation de tapis sur le parquet irait également dans ce sens.
Il existe des studios dans lesquels le sol est posé en suspension sur une dalle de béton. Je ne sais pas comment le système fonctionne mais il permet d'absorber les vibrations du sol et de permettre une meilleur isolation entre les différentes pièces et aussi des effets de résonance. (A prendre avec des pincettes. Je sais que ça existe, mais je ne sais pas exactement comment ça fonctionne....)
Pour l'isolation entre les parois de la régie et du studio, je pense que la référence est la laine de roche. Pour les parois vitrées, on utilise généralement deux vitres non parallèles.
Bon voilà, tout ça c'est de l'acoustique de comptoir et je ne peux pas t'aider beaucoup plus malheureusement....
0
Mes réalisations : http://www.rallu-sound.ch
- < Liste des sujets
- Charte