Construction d'un studio de répétition dans une cave de 2,00 m de haut
- 8 réponses
- 6 participants
- 1 133 vues
- 10 followers

Nilssbs
4

Nouvel·le AFfilié·e
Membre depuis 1 an
Sujet de la discussion Posté le 12/02/2024 à 22:02:53Construction d'un studio de répétition dans une cave de 2,00 m de haut
Bonjour à tous !
Je suis en train de réaliser des travaux dans ma cave afin d'y créer un studio de répétition.
Plutôt qu'un long discours, je vous montre la situation à date de l'existant (plans + photos) :








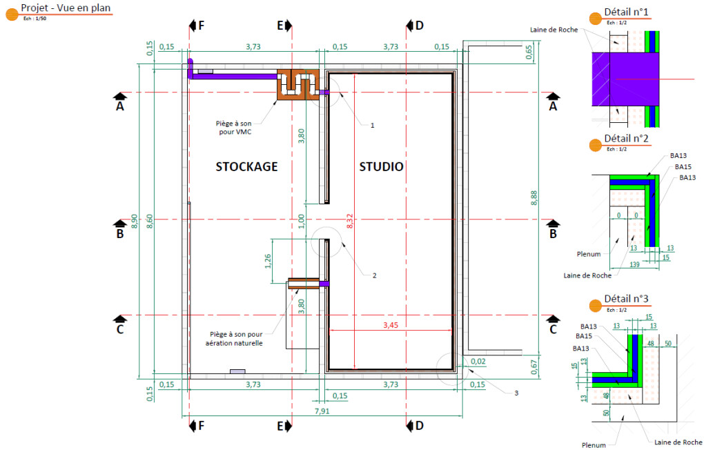
Pour résumé : le studio est à réaliser sur la moitié de la cave. Celle-ci fait 2,04 m de hauteur sous plafond (par rapport aux poutres précontraintes) et la cave des voisins est du côté mur du mur plus long. 2 ventaux donnant sur les jardins avant et arrière sont présents. Dalle béton d'environ 8-10 cm, murs sur longrines + parpaing, plafond en hourdis béton.
Par rapport à la situation initiale à l'achat de la maison (il y a 2 ans), nous avons déjà réalisé les travaux suivants :
- Réalisation d'une dalle en béton sur le quart manquant de la cave (au niveau de la batterie) :

- Réalisation d'un ragréage complet de la cave (en faisant sauter préalablement le ragréage existant)
J'ai pris le temps de me renseigner sur Internet et c'est sur ce forum que j'ai trouvé le plus d'info, en particulier le thread de Napoléton.
Je vous montre ci-après mon projet, tel que je l'imagine aujourd'hui et je vous fait un listing de mes interrogations par la suite :






La ventilation :
Je pars aujourd'hui sur la solution suivante :
- Bouchage les 2 ventaux existants ;
- Création d'une ouverture basse pour faire une entrée d'air "naturelle" avec piège à son (aire de la cave "Stockage") ;
- Création d'une ouverture haute pour installer une VMC + piège à son avec évacuation de l'air vicié en dehors de la cave.
Concernant le dimensionnement VMC + gaines + piège à son, j'ai cru comprendre qu'il fallait de Ø150, mais ça me paraît un peu énorme : des avis ?
Concernant l'interface avec le mur en parpaing + le plénum et le PLACO, comment faire pour minimiser au mieux l'impact de l'ouverture dans l'isolation phonique ?
En ce qui concerne les données hygrométriques de la cave :
- 65% et 80% en fonction de l'humidité ambiante (moyenne plutôt à 65%)
- température entre 12.5° et 14° (moyenne à 13%)
(suite au post suivant pour ajouter des photos)
Je suis en train de réaliser des travaux dans ma cave afin d'y créer un studio de répétition.
Plutôt qu'un long discours, je vous montre la situation à date de l'existant (plans + photos) :








Pour résumé : le studio est à réaliser sur la moitié de la cave. Celle-ci fait 2,04 m de hauteur sous plafond (par rapport aux poutres précontraintes) et la cave des voisins est du côté mur du mur plus long. 2 ventaux donnant sur les jardins avant et arrière sont présents. Dalle béton d'environ 8-10 cm, murs sur longrines + parpaing, plafond en hourdis béton.
Par rapport à la situation initiale à l'achat de la maison (il y a 2 ans), nous avons déjà réalisé les travaux suivants :
- Réalisation d'une dalle en béton sur le quart manquant de la cave (au niveau de la batterie) :

- Réalisation d'un ragréage complet de la cave (en faisant sauter préalablement le ragréage existant)
J'ai pris le temps de me renseigner sur Internet et c'est sur ce forum que j'ai trouvé le plus d'info, en particulier le thread de Napoléton.
Je vous montre ci-après mon projet, tel que je l'imagine aujourd'hui et je vous fait un listing de mes interrogations par la suite :






La ventilation :
Je pars aujourd'hui sur la solution suivante :
- Bouchage les 2 ventaux existants ;
- Création d'une ouverture basse pour faire une entrée d'air "naturelle" avec piège à son (aire de la cave "Stockage") ;
- Création d'une ouverture haute pour installer une VMC + piège à son avec évacuation de l'air vicié en dehors de la cave.
Concernant le dimensionnement VMC + gaines + piège à son, j'ai cru comprendre qu'il fallait de Ø150, mais ça me paraît un peu énorme : des avis ?
Concernant l'interface avec le mur en parpaing + le plénum et le PLACO, comment faire pour minimiser au mieux l'impact de l'ouverture dans l'isolation phonique ?
En ce qui concerne les données hygrométriques de la cave :
- 65% et 80% en fonction de l'humidité ambiante (moyenne plutôt à 65%)
- température entre 12.5° et 14° (moyenne à 13%)
(suite au post suivant pour ajouter des photos)

Nilssbs
4

Nouvel·le AFfilié·e
Membre depuis 1 an
2 Posté le 12/02/2024 à 22:11:29
L'isolation phonique :
Je suis dans l'impossibilité de réaliser un plancher flottant au vu de la hauteur sous plafond.
On a fait des tests avec un sonomètre afin d'établir un état initial de la situation :


En gros avec une source à 105 dB on monte à 57 de nuisance chez les voisins, 65 dB dans ma maison et 67 dB dans mon jardin.
J'aimerai votre avis sur la conception de la "boite", sachant qu'on m'a proposé de mettre du BA25 à la place de BA13 + BA15.
Aussi, j'aimerai des précisions sur les jonctions (angles vue en plan) + l'interface entre les murs verticaux et le plafond, ainsi qu'un avis sur l'implantation des rails pour tenir le faux plafond.
Je suis ouvert à vos avis et à toutes proposition et je me tiens à disposition pour donner des précisions sur plan ou par photo.
Merci à tous !
Je suis dans l'impossibilité de réaliser un plancher flottant au vu de la hauteur sous plafond.
On a fait des tests avec un sonomètre afin d'établir un état initial de la situation :


En gros avec une source à 105 dB on monte à 57 de nuisance chez les voisins, 65 dB dans ma maison et 67 dB dans mon jardin.
J'aimerai votre avis sur la conception de la "boite", sachant qu'on m'a proposé de mettre du BA25 à la place de BA13 + BA15.
Aussi, j'aimerai des précisions sur les jonctions (angles vue en plan) + l'interface entre les murs verticaux et le plafond, ainsi qu'un avis sur l'implantation des rails pour tenir le faux plafond.
Je suis ouvert à vos avis et à toutes proposition et je me tiens à disposition pour donner des précisions sur plan ou par photo.
Merci à tous !
1

Jean-Pierre B.
1365

AFicionado·a
Membre depuis 7 ans
3 Posté le 11/03/2024 à 19:19:11
Je n'ai pas tout lu en détails, faute de temps!
Pour la ventilation :
150mm, cela limite votre débit d'air soufflé à environ 80m³/h environ (pour que le flux d'air soit silencieux), c'est suffisant pour 3 personnes.
Pour l'isolation :
A masse égale, mieux vaut 2 couches croisées qu'une seule.
Pour les suspentes, attention à les charger correctement. Trop chargées, elles ne rempliront pas leur rôle de désolidariser, pas assez chargéee, leur fréquence naturelle pourrait coïncider avec la fréquence à isoler...si fn=f, vous allez amplifiez ce que vous vouliez isoler!
Si trop chargée, il suffit d'en rajouter.
Avec vos mesures, faites le calcul si votre proposition vous permet d'atteindre l'isolation souhaitée.
Petit rappel de l'isolation : la masse, l'étanchéité, la désolidarisation.
Avis perso ; 2m, c'est vraiment très très très très bas...pour commencer.
Bon courage!
Pour la ventilation :
150mm, cela limite votre débit d'air soufflé à environ 80m³/h environ (pour que le flux d'air soit silencieux), c'est suffisant pour 3 personnes.
Pour l'isolation :
A masse égale, mieux vaut 2 couches croisées qu'une seule.
Pour les suspentes, attention à les charger correctement. Trop chargées, elles ne rempliront pas leur rôle de désolidariser, pas assez chargéee, leur fréquence naturelle pourrait coïncider avec la fréquence à isoler...si fn=f, vous allez amplifiez ce que vous vouliez isoler!
Si trop chargée, il suffit d'en rajouter.
Avec vos mesures, faites le calcul si votre proposition vous permet d'atteindre l'isolation souhaitée.
Petit rappel de l'isolation : la masse, l'étanchéité, la désolidarisation.
Avis perso ; 2m, c'est vraiment très très très très bas...pour commencer.
Bon courage!
1
Acoustic Designer @ Neutral & Natural Acoustics
Consultation Acoustique -> me contacter par message privé.
[ Dernière édition du message le 11/03/2024 à 19:19:56 ]

Xavier07
295

Posteur·euse AFfamé·e
Membre depuis 23 ans
4 Posté le 11/03/2024 à 19:39:41
Bonjour,
Sujet très intéressant et bien documenté
Quelques idées/observations :
- Taux d'humidité assez élevé... et température fraiche : ajouter une pompe à chaleur pour y remédier
- Créer une fosse isolante (comme on fait pour les machines outils dites de précision)
- Pour la hauteur limitée, un (très) bon éclairage et beaucoup de sources lumineuses
A suivre ...
Sujet très intéressant et bien documenté

Quelques idées/observations :
- Taux d'humidité assez élevé... et température fraiche : ajouter une pompe à chaleur pour y remédier
- Créer une fosse isolante (comme on fait pour les machines outils dites de précision)
- Pour la hauteur limitée, un (très) bon éclairage et beaucoup de sources lumineuses
A suivre ...
0
http://soundcloud.com/xavier07

Nilssbs
4

Nouvel·le AFfilié·e
Membre depuis 1 an
5 Posté le 02/04/2024 à 13:56:44
Citation de Jean-Pierre B. :
Je n'ai pas tout lu en détails, faute de temps!
Pour la ventilation :
150mm, cela limite votre débit d'air soufflé à environ 80m³/h environ (pour que le flux d'air soit silencieux), c'est suffisant pour 3 personnes.
Pour l'isolation :
A masse égale, mieux vaut 2 couches croisées qu'une seule.
Pour les suspentes, attention à les charger correctement. Trop chargées, elles ne rempliront pas leur rôle de désolidariser, pas assez chargéee, leur fréquence naturelle pourrait coïncider avec la fréquence à isoler...si fn=f, vous allez amplifiez ce que vous vouliez isoler!
Si trop chargée, il suffit d'en rajouter.
Avec vos mesures, faites le calcul si votre proposition vous permet d'atteindre l'isolation souhaitée.
Petit rappel de l'isolation : la masse, l'étanchéité, la désolidarisation.
Avis perso ; 2m, c'est vraiment très très très très bas...pour commencer.
Bon courage!
Pour la ventilation, les ouvertures ont été réalisées (à peu de chose près) aux endroits sur mon schéma.
Afin de me limiter à une alvéole de parpaing, on a réalisé une ouverture pour passer une gaine souple avec isolant en Ø125.




Mis à part les boîtes à son, tout le reste a déjà a été acheté, je réaliserai un post dédié pour présenter nos choix.
Pour l'isolation phonique, c'est donc du Duo'Tech 25 (= 2 BA13 avec une fibre acoustique entre les 2) qui a été mis pour les murs verticaux, le tout posé sur un résilient.
Pour le plafond, ce sont 2 BA13 croisés posés sur des montants. Ceux-ci sont fixé sur le mur périphérique à même le placo vertical + fixés au plafond par l'intermédiaire de 2 rails.
Un 1er bout de rail est collé au hourdis et le second permet le réglage en altimétrie.
J'ai demandé à poser un resillent entre le montant horizontal et le rail.

J'ai effectivement moins de 2 m, mais pas vraiment le choix...
Citation de Xavier07 :
Bonjour,
Sujet très intéressant et bien documenté![]()
Quelques idées/observations :
- Taux d'humidité assez élevé... et température fraiche : ajouter une pompe à chaleur pour y remédier
- Créer une fosse isolante (comme on fait pour les machines outils dites de précision)
- Pour la hauteur limitée, un (très) bon éclairage et beaucoup de sources lumineuses
A suivre ...
Merci pour le retour !
Pour l'humidité, la ventilation continue devrait y remédier.
Pour la température, j'attends de voir un peu avec le temps comment réagit la cave maintenant que le PLACO est posé.
Pour la fosse, il aurait fallu la prévoir il y a longtemps... En particulier quand il y avait encore du gravier ! Mais je ne suis pas trop inquiet par la propagation du son par le sol.
Et pour l'éclairage, ça viendra en second temps, mais c'est prévu

Quelques sujets en vrac :
On a prévu une ouverture en Ø80 pour passer l'élec afin d'avoir un seul trou et une gaine technique qui fait tout le contour de la pièce :

Concernant les ventaux existants, on les a comblé avec un matériaux type RECTICEL.
Je vais quand même prévoir la pose d'une plaque + joint sur l'extérieur de ma maison à ce niveau pour prévenir toute infiltration d'eau.

On a mis de la mousse expansive dans les trous des hourdis périphériques :

Tout est un peu en vrac, désolé !
Aujourd'hui tout le PLACO est posé + les portes et les bandes sont faites.
Je prépare un post pour vous montrer tout ça !
1
[ Dernière édition du message le 02/04/2024 à 14:01:40 ]

DocK'S
2451

AFicionado·a
Membre depuis 2 ans
6 Posté le 02/04/2024 à 14:31:47
Flag!
Bon courage.
Un truc à penser tout de suite si c'est pas fait, mettre des grilles sur les entrées/sorties de la VMC à l'extérieur.
J'avais laissé 2 petites journées sans grille et j'ai retrouvé un pigeon coincé dans la gaine et qui avait fait un peu de dégâts.
Bon courage.

Un truc à penser tout de suite si c'est pas fait, mettre des grilles sur les entrées/sorties de la VMC à l'extérieur.
J'avais laissé 2 petites journées sans grille et j'ai retrouvé un pigeon coincé dans la gaine et qui avait fait un peu de dégâts.

0

Nilssbs
4

Nouvel·le AFfilié·e
Membre depuis 1 an
7 Posté le 02/04/2024 à 15:25:48
Citation de DocK'S :
Flag!
Bon courage.
Un truc à penser tout de suite si c'est pas fait, mettre des grilles sur les entrées/sorties de la VMC à l'extérieur.
J'avais laissé 2 petites journées sans grille et j'ai retrouvé un pigeon coincé dans la gaine et qui avait fait un peu de dégâts.
Il n'y aura qu'une sortie à l'extérieur et ça sera un PVC vertical avec un chapeau comme sur les toitures, donc à priori pas de sujet avec les pigeons aha !
Attention : j'ai opté pour une ventilation, pas une VMC (inutile a priori car qu'une entrée/sortie à gérer)
0

La frite c'est la fête
5

Nouvel·le AFfilié·e
Membre depuis 1 an
8 Posté le 05/09/2024 à 12:35:57
Bonjour,
Des nouvelles de la construction? Je suis très intéressé de voir le résultat ou l'avancement des travaux.
Des nouvelles de la construction? Je suis très intéressé de voir le résultat ou l'avancement des travaux.
0

gregmartial
182

Posteur·euse AFfiné·e
Membre depuis 17 ans
9 Posté le 05/09/2024 à 18:17:13
Salut à toi,
la laine qui entoure la gaine de ventilation à l'air jaune, ce sera pas de la laine de verre? Car la laine de verre est moins efficace que la laine roche.
En tout cas à vue d'oeil, les dimensions ne doivent pas être loin de l'idéal point de vue des ondes stationnaires, essai de garder cette proportion.
la laine qui entoure la gaine de ventilation à l'air jaune, ce sera pas de la laine de verre? Car la laine de verre est moins efficace que la laine roche.
En tout cas à vue d'oeil, les dimensions ne doivent pas être loin de l'idéal point de vue des ondes stationnaires, essai de garder cette proportion.
0
- < Liste des sujets
- Charte